国分ハウジンググループ中古住宅専門店

お電話でのお問い合せ:099-204-0705

  • 会員登録
  • ログイン
  • 来店予約
不動産検索

不動産検索

  • 中古一戸建てを探す
  • 中古マンションを探す
  • お気に入り不動産を見る
中古を買ってリノベーション
イベント
店舗情報

店舗情報

  • 店舗情報
  • ご来店予約
  • イベント・見学予約
  • 住宅購入コラム
  • お問い合わせ
  • 会社概要
  • 会員登録
  • ログイン
  • 来店予約
  • 不動産検索
  • 会員登録
  • 来店予約
  • TEL
  • MENU
  • トップページ
  • 中古一戸建てを探す
  • 中古マンションを探す
  • 鹿児島エリアの不動産相場情報
  • 中古を買ってリノベーション
  • 店舗情報
    • 店舗情報
    • イベント情報
    • ご来店予約
    • イベント・見学予約
    • 住宅購入コラム
    • お知らせ
    • 新着不動産登録情報
    • お問い合わせ
    • 会社概要
    • プライバシーポリシー
    • 会員規約
    • 外部サービス(SNS)
      アカウント連携利用規約
  • 会員登録・ログイン
    • 新規会員登録
    • ログイン
    • お気に入りの不動産を見る
  • サイトマップ
  1. ホーム
  2. 不動産検索
  3. 鹿屋市西原4丁目

不動産詳細Property Detail

中古一戸建て
鹿屋市西原4丁目

価格:2,890万円

  • お気に入り不動産を見る
  • お気に入りに追加
  • 今すぐ資料請求・見学予約

この不動産のお支払い例

総額:0万円(税込)

この不動産の支払い例

※上記支払例の借入条件:金利0.95%、
借入総額2,890万円、借入期間40年

頭金0円 / ボーナス払い0円

月々:円

中古+リノベーションのお支払い例

総額:0万円(税込)

リノベセットプラン
の支払い例

※上記支払例の借入条件:金利0.95%、借入総額万円、借入期間40年

頭金0円 / ボーナス払い0円

月々:円

画像

所在地・交通

所在地 鹿屋市西原4丁目 
最寄駅  
最寄バス停 慰霊塔前 停歩 約7分
小学校校区 西原台小
中学校校区 第一鹿屋中

※学校区は住所から自動判定したものであり、保証できる情報ではございません。正確な学校区はお問い合わせ下さい。

お問い合わせフォームはこちら

GoogleMapで周辺地図を表示

※地図上の「ピンマーク」の位置は「町名」もしくは「丁目」がある場合は「丁目」にマッピングされています。
実際の場所ではございません。

不動産概要

種目 中古一戸建て
土地面積 273.88㎡
私道面積
建ぺい率/容積率 60% / 200%
都市計画 非線引き区域
接道状況 西 幅6m 公道
間口
奥行
地目 宅地
土地権利 所有権
地勢
用途地域 第一種住居地域
現況 空家
再建築不可
条件等
取引態様 仲介
種目 中古一戸建て
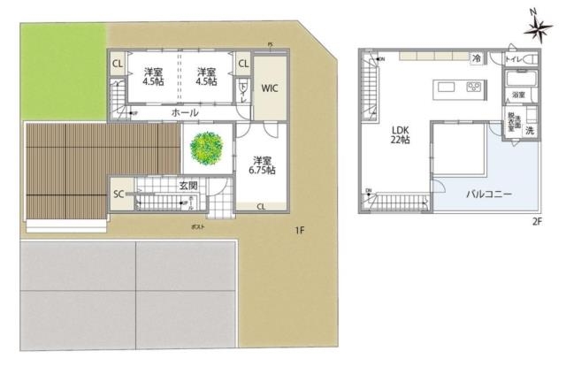
間取り 3LDK
間取り内訳
土地面積 273.88㎡
私道面積
建物面積 115.93㎡
建物構造規模 木造
築年月(竣工月) 2023年1月
駐車場有無 有
建ぺい率/容積率 60% / 200%
都市計画 非線引き区域
接道状況 西 幅6m 公道
地目 宅地
土地権利 所有権
地勢
用途地域 第一種住居地域
現況 空家
再建築不可
取引態様 仲介
種目 中古一戸建て
間取り 3LDK
間取り内訳
土地面積 273.88㎡
私道面積
建物面積 115.93㎡
建物構造規模 木造
築年月(竣工月) 2023年1月
駐車場有無 有
建ぺい率/容積率 60% / 200%
都市計画 非線引き区域
接道状況 西 幅6m 公道
地目 宅地
土地権利 所有権
地勢
用途地域 第一種住居地域
現況 空家
再建築不可
取引態様 仲介
種目 中古一戸建て
間取り 3LDK
間取り内訳
専有面積
建物構造 木造
バルコニー面積
向き
階数
所在階
築年月(竣工月) 2023年1月
駐車場有無 有
駐車場料金
駐車場備考
総戸数
管理費
積立金
土地権利 所有権
管理形態/方式
用途地域 第一種住居地域
現況 空家
取引態様 仲介

取引条件等

引渡し 即時

その他

設備
特徴
諸条件・相談
特記
備考
情報登録日 2025年12月19日
情報更新予定日 2026年2月27日
不動産番号 30230

この不動産に似た不動産をピックアップしました!

  • 鹿児島県鹿屋市横山町[780万円][3LDK]
  • 鹿児島県鹿屋市野里町[2,880万円][4LDK]
  • お気に入りに追加
  • 今すぐ資料請求・見学予約
  • 会員様限定の「非公開不動産」を閲覧したい!カンタン無料会員登録

    現在578件ご紹介可能!

    売主様のご要望で一般には公開していない
    「非公開不動産」を会員様だけに限定公開しています。

    今すぐ無料会員登録

    ページの先頭へ

    • 会社案内
    • 店舗情報
    • 中古を買って
      リノベーション
    • 住宅購入コラム
    • 不動産相場情報

    国分ハウジンググループ中古住宅専門店

    099-204-0705

    099-204-0705

    • トップページ
    • 中古一戸建てを探す
    • 中古マンションを探す
    • 新規会員登録
    • ログイン
    • 鹿児島エリアの不動産相場情報
    • 新着不動産登録情報
    • 中古を買ってリノベーション
    • 店舗情報
    • イベント情報
    • ご来店予約
    • イベント・見学予約
    • 住宅購入コラム
    • お知らせ
    • お問い合わせ
    • 会社概要
    • プライバシーポリシー
    • サイトマップ
    • 会員規約
    • 外部サービス(SNS)
      アカウント連携利用規約

    エリア別検索

    中古一戸建て
    • 鹿児島市北部
    • 鹿児島市中心部
    • 鹿児島市南部
    • 鹿児島市桜島
    • 北薩
    • 大薩
    • 南薩
    中古マンション
    • 鹿児島市北部
    • 鹿児島市中心部
    • 鹿児島市南部
    • 鹿児島市桜島
    • 北薩
    • 大薩
    • 南薩
    Copyright© 国分ハウジンググループ中古住宅専門店. All rights reserved.